収益物件/マンション 広島市中区西平塚町3-
所在地
広島市中区西平塚町3-
6,230万円
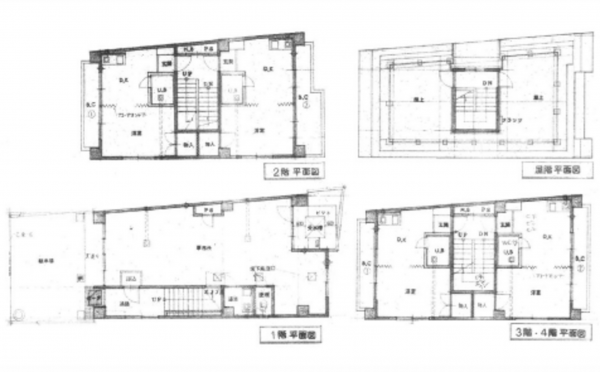
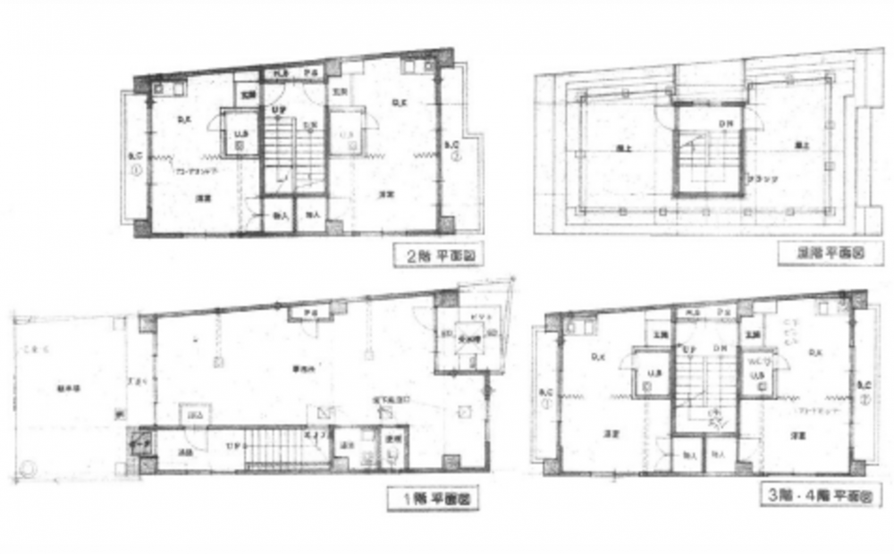
1F 事務所 2F 1DK×2室 3F 1DK×2室 4F 1DK×2室
1階:事務所、2〜4階:住居(1DK) 6室
現況満室
現況満室年間収入:4,986,000円 利回り8.00%
令和7年度固定資産税269,900円
月々の
支払例
支払例
万円
年
%
円
※呉信用金庫/借入金6,230万円、返済期間40年、金利0.925%変動金利)の場合
※審査により金利は変わる可能性があります。
物件概要
- 交通
-
広島電鉄本線 銀山町駅 まで 徒歩7分
広島電鉄本線 稲荷町駅 まで 徒歩8分
- 接道状況
- 西側 公道4m
- 収益/年
- 4,986,000円
- 表面利回り
- 8%
- 土地面積
- 108.89㎡ (32.93坪)
- 建物面積
- 246.98㎡ (74.71坪)
- 所在階/階数
- 築年数
-
1985年
(昭和60)
4月
築41年 - 建ぺい率
- 80%
- 容積率
- 400%
- 土地権利
- 構造および階数
- RC(鉄筋コンクリート) 陸屋根 造 地上4階建
- 総戸数
- 小学校区
- 竹屋
- 中学校区
- 国泰寺
- 私道負担
- 地目
- 現況
- 賃貸中
- 引渡時期
- 相談
- 駐車場
- 上水道
- 公共
- 下水道
- 公共
- ガス
- 都市ガス
- 都市計画
- 市街化区域
- 管理形態
- 管理方式
- 用途地域
- 商業
- 設備・条件
- 備考
-
防火地域 広島駐車場整備地区 東部復興土地区画整理事業
都心コア商業地区地区計画 駐輪場附置義務対象区域
景観計画重点地区 高次都市機能誘導区域 居住誘導区域
- 取引態様
- 仲介

