マンション ルミナス三川町ラヴィアン・シャンゼリゼ平和大通り
所在地
広島市中区三川町9-
5,480万円
80.71m²
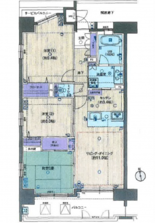
約11LD 約3.4K 約9.4洋 約6洋 6和
平和大通りに面す 南西角住戸 眺望・陽当り良好
ペット飼育可(飼育細則有)
エレベーター オートロック 宅配ボックス
フジグラン広島徒歩5分
月々の
支払例
支払例
万円
年
%
円
※呉信用金庫/借入金5,480万円、返済期間40年、金利0.925%変動金利)の場合
※審査により金利は変わる可能性があります。
物件概要
- 交通
-
広島電鉄本線 胡町駅 まで 徒歩9分
バス停田中町 まで 徒歩3分
- 専有面積
- 壁芯 80.71㎡
- バルコニー
-
12.90㎡
面積不明 - 所在階/階数
- 14階/15階
- 築年数
-
2006年
(平成18)
2月
築20年 - 建ぺい率
- 容積率
- 土地権利
- 所有権
- 構造および階数
- RC(鉄筋コンクリート) 造 地上15階建
- 総戸数
- 43戸
- 小学校区
- 竹屋
- 中学校区
- 国泰寺
- 地目
- 現況
- 空
- 引渡時期
- 即時
- 駐車場
- 駐車場月額
- 管理形態
- 全部委託
- 管理方式
- 管理人日勤
- 管理会社
- (株)ロウジュウコミュニティー
- 管理費
- 12,910円
- 修繕積立費
- 16,140円
- 上水道
- 下水道
- ガス
- 都市ガス
- 都市計画
- 市街化区域
- 用途地域
- 商業
- 設備・条件
- システムキッチン、カウンターキッチン、シャンプードレッサー、オートロック、ペット可、角部屋、エレベーター
- 備考
-
用途地域:商業
駐車場:隣接地にタワーパーキング有(貸主:(株)ロウジュウコミュニティー、空状況要確認)
アルコーブ面積:2.66㎡(0.8坪) サービスバルコニー面積:2.28㎡(0.68坪) - 取引態様
- 仲介

