マンション ライオンズマンション西霞町第2
所在地
広島市南区西霞町2-
380万円
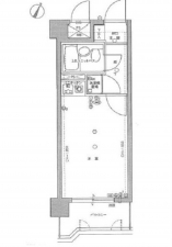
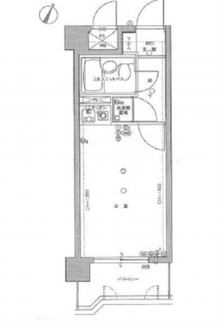
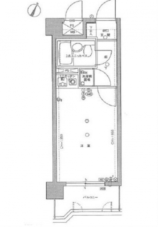
20.59m²
1R(洋)
角部屋 オートロック エレベーター1基
自転車・バイク駐輪場有
自用・投資用にも可能です 33,000円で賃貸募集中
月々の
支払例
支払例
万円
年
%
円
※呉信用金庫/借入金380万円、返済期間40年、金利0.925%変動金利)の場合
※審査により金利は変わる可能性があります。
物件概要
- 交通
-
バス停大学病院南門 まで 徒歩2分
- 専有面積
- 壁芯 20.59㎡
- バルコニー
-
3.25㎡
面積不明 - 所在階/階数
- 4階/10階
- 築年数
-
1990年
(平成2)
3月
築36年 - 建ぺい率
- 容積率
- 土地権利
- 所有権
- 構造および階数
- RC(鉄筋コンクリート) SRC造 地上10階建
- 総戸数
- 54戸
- 小学校区
- 大河
- 中学校区
- 翠町
- 地目
- 現況
- 空
- 引渡時期
- 相談
- 駐車場
- 駐車場月額
- 9,000〜12,000円/月
- 管理形態
- 全部委託
- 管理方式
- 管理人巡回
- 管理会社
- (株)ロウジュウコミュニティー
- 管理費
- 7,170円
- 修繕積立費
- 1,500円
- 上水道
- 下水道
- ガス
- 都市ガス
- 都市計画
- 市街化区域
- 用途地域
- 近隣商業
- 設備・条件
- システムキッチン、オートロック、角部屋、エレベーター
- 備考
-
用途地域:近隣商業
駐車場:9,000〜12,000円/月
リフォーム要 - 取引態様
- 仲介

