マンション ロッコーマンション竹屋町
所在地
広島市中区竹屋町8-
1,980万円
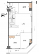
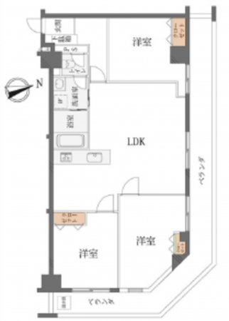
74.29m²
LDK 洋 洋 洋
フルリノベーション済:IHシステムキッチン(食洗機付)・浴室・
トイレ・洗面・建具等交換、全室フローリング・クロス張替、浴室(衣類乾燥・暖房付)
角住戸 2面バルコニー LDKダウンライト・各居室照明付
フジグラン広島店徒歩約6分
月々の
支払例
支払例
万円
年
%
円
※呉信用金庫/借入金1,980万円、返済期間40年、金利0.925%変動金利)の場合
※審査により金利は変わる可能性があります。
物件概要
- 交通
-
広島電鉄皆実線 南区役所前駅 まで 徒歩7分
バス停昭和町 まで 徒歩1分
- 専有面積
- 壁芯 74.29㎡
- バルコニー
-
22.38㎡
面積不明 - 所在階/階数
- 2階/7階
- 築年数
-
1982年
(昭和57)
3月
築44年 - 建ぺい率
- 容積率
- 土地権利
- 所有権
- 構造および階数
- RC(鉄筋コンクリート) 造 地上7階建
- 総戸数
- 25戸
- 小学校区
- 竹屋
- 中学校区
- 国泰寺
- 地目
- 現況
- 空
- 引渡時期
- 相談
- 駐車場
- 空無
- 駐車場月額
- 管理形態
- 自主管理
- 管理方式
- 管理人日勤
- 管理会社
- 管理費
- 14,430円
- 修繕積立費
- 5,900円
- 上水道
- 下水道
- ガス
- 都市計画
- 市街化区域
- 用途地域
- 商業
- 設備・条件
- システムキッチン、IHクッキングヒーター、食器洗浄乾燥機、シャンプードレッサー、角部屋、エレベーター
- 備考
-
用途地域:商業
エレベーター有
駐車場・駐輪場:空き無し - 取引態様
- 仲介

