マンション ロッコー第2三川町グランドマンション
所在地
広島市中区三川町10-
750万円
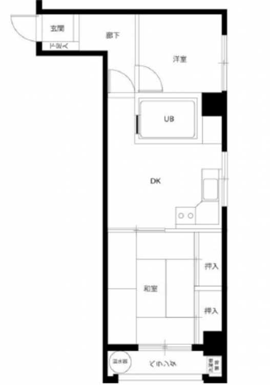
40.04m²
DK 洋 和
ネット環境:有(マンションタイプ)
竹屋小学校徒歩11分 国泰寺中学校徒歩8分
月々の
支払例
支払例
万円
年
%
円
※広島銀行/借入金750万円、返済期間35年、金利0.700%変動金利)の場合
※審査により金利は変わる可能性があります。
物件概要
- 交通
-
バス停新天地 まで 徒歩2分
- 専有面積
- 内法 40.04㎡
- バルコニー
-
3.24㎡
面積不明 - 所在階/階数
- 3階/9階
- 築年数
-
1980年
(昭和55)
3月
築45年 - 建ぺい率
- 容積率
- 土地権利
- 所有権
- 構造および階数
- SRC(鉄骨鉄筋コンクリート) RC造 地上9階建
- 総戸数
- 22戸
- 小学校区
- 竹屋
- 中学校区
- 国泰寺
- 地目
- 現況
- 空
- 引渡時期
- 相談
- 駐車場
- 無
- 駐車場月額
- 管理形態
- 自主管理
- 管理方式
- 自主管理
- 管理会社
- 管理費
- 9,514円
- 修繕積立費
- 2,856円
- 上水道
- 下水道
- ガス
- 都市ガス
- 都市計画
- 市街化区域
- 用途地域
- 商業
- 設備・条件
- システムキッチン
- 備考
-
用途地域:商業
令和7年度固定資産税等年額:17,810円
駐輪場年額:12,000円 - 取引態様
- 仲介

