マンション ゆうあいマンション牛田
所在地
広島市東区牛田新町3丁目19-
1,395万円
59.76m²
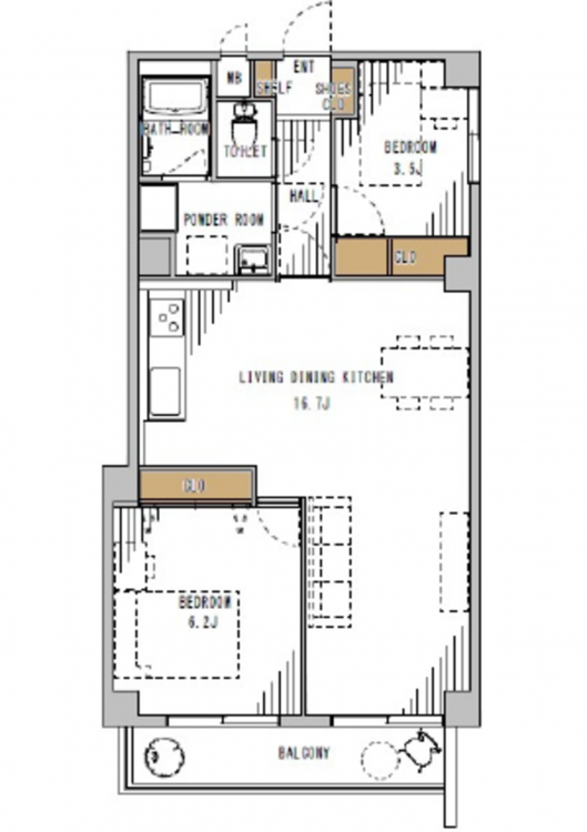
16.7LDK 6.2洋 3.5洋
新規リノベーション物件(令和7年6月完了)
月々の
支払例
支払例
万円
年
%
円
※広島銀行/借入金1,395万円、返済期間35年、金利0.700%変動金利)の場合
※審査により金利は変わる可能性があります。
物件概要
- 交通
-
広島高速交通アストラムライン 不動院前駅 まで 徒歩7分
バス停牛田新町 まで 徒歩6分
- 専有面積
- 59.76㎡
- バルコニー
-
6.48㎡
面積不明 - 所在階/階数
- 2階/5階
- 築年数
-
1979年
(昭和54)
10月
築46年 - 建ぺい率
- 容積率
- 土地権利
- 構造および階数
- RC(鉄筋コンクリート) 造 地上5階建
- 総戸数
- 30戸
- 小学校区
- 牛田新町
- 中学校区
- 牛田
- 地目
- 現況
- 空
- 引渡時期
- 相談
- 駐車場
- 無
- 駐車場月額
- 管理形態
- 全部委託
- 管理方式
- 管理会社
- (株)大京アステージ
- 管理費
- 6,100円
- 修繕積立費
- 9,560円
- 上水道
- 下水道
- ガス
- 都市ガス
- 都市計画
- 市街化区域
- 用途地域
- 2種中高
- 設備・条件
- システムキッチン、シャンプードレッサー
- 備考
-
用途地域:第二種中高層
- 取引態様
- 仲介

