マンション ライオンズマンション古江ガーデン
所在地
広島市西区古江上2丁目
1,980万円
72.50m²
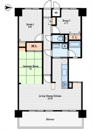
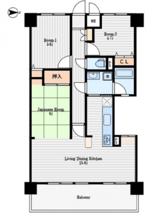
15.8LDK 6和 5.6洋 4.7洋
2019年4月フルリノベーション
室内美麗 こだわりの内装
古田小学校徒歩7分 古田中学校徒歩8分 アバンセ古江店徒歩13分
ローソン広島田方橋店徒歩6分 ウォンツ庚午中店徒歩15分
フジ庚午店徒歩4分 アイグラン保育園古江徒歩13分
月々の
支払例
支払例
万円
年
%
円
※呉信用金庫/借入金1,980万円、返済期間40年、金利0.925%変動金利)の場合
※審査により金利は変わる可能性があります。
物件概要
- 交通
-
広島電鉄宮島線 古江駅 まで 徒歩12分
- 専有面積
- 72.50㎡
- バルコニー
-
14.00㎡
面積不明 - 所在階/階数
- 8階/10階
- 築年数
-
1989年
(平成元)
6月
築36年 - 建ぺい率
- 容積率
- 土地権利
- 所有権
- 構造および階数
- SRC(鉄骨鉄筋コンクリート) 造 地上10階建
- 総戸数
- 68戸
- 小学校区
- 古田
- 中学校区
- 古田
- 地目
- 現況
- 空
- 引渡時期
- 相談
- 駐車場
- 空有
- 駐車場月額
- 8,000円/月
- 管理形態
- 全部委託
- 管理方式
- 管理人日勤
- 管理会社
- (株)大京アステージ
- 管理費
- 9,100円
- 修繕積立費
- 10,880円
- 上水道
- 下水道
- ガス
- 都市ガス
- 都市計画
- 市街化区域
- 用途地域
- 1種住居
- 設備・条件
- システムキッチン、シャンプードレッサー
- 備考
- 用途地域:第一種住居
- 取引態様
- 仲介

