マンション ライオンズマンション空港通り
所在地
広島市西区南観音2丁目3-
300万円
15.87m²
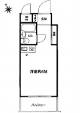
1R(約6洋)
月々の
支払例
支払例
万円
年
%
円
※広島銀行/借入金300万円、返済期間35年、金利0.700%変動金利)の場合
※審査により金利は変わる可能性があります。
物件概要
- 交通
-
広島電鉄江波線 舟入幸町駅 まで 徒歩15分
バス停旭橋入口 まで 徒歩4分
- 専有面積
- 内法 15.87㎡
- バルコニー
-
2.97㎡
面積不明 - 所在階/階数
- 6階/8階
- 築年数
-
1989年
(平成元)
11月
築36年 - 建ぺい率
- 容積率
- 土地権利
- 所有権
- 構造および階数
- SRC(鉄骨鉄筋コンクリート) 造 地上8階建
- 総戸数
- 68戸
- 小学校区
- 南観音
- 中学校区
- 観音
- 地目
- 現況
- 空
- 引渡時期
- 相談
- 駐車場
- 空有
- 駐車場月額
- 10,000円/月
- 管理形態
- 全部委託
- 管理方式
- 管理人巡回
- 管理会社
- 章栄管理(株)
- 管理費
- 6,010円
- 修繕積立費
- 5,050円
- 上水道
- 下水道
- ガス
- 都市ガス
- 都市計画
- 市街化区域
- 用途地域
- 2種住居
- 設備・条件
- システムキッチン
- 備考
- 用途地域:第二種住居
- 取引態様
- 仲介

