マンション 鈴が峰第2住宅5号棟
所在地
広島市西区鈴が峰町35-
1,790万円
80.75m²
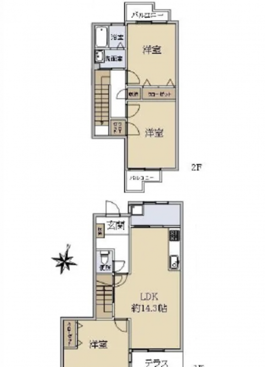
1F 約14.3LDK 洋 2F 洋 洋 浴室 洗面
南向き 浴室に窓あり 温水洗浄便座 シャワー付洗面化粧台
システムキッチン 食器洗浄乾燥機 浄水器 人感センサー付照明
ダウンライト 全居室フローリング モニタ付インターホン 専用庭
メゾネット
月々の
支払例
支払例
万円
年
%
円
※呉信用金庫/借入金1,790万円、返済期間40年、金利0.925%変動金利)の場合
※審査により金利は変わる可能性があります。
物件概要
- 交通
-
JR山陽本線 新井口駅 まで 徒歩8分
広島電鉄宮島線 商工センター入口駅 まで 徒歩7分
バス停鈴が峰住宅中 まで 徒歩2分
- 専有面積
- 壁芯 80.75㎡
- バルコニー
-
約3.50㎡
面積不明 - 所在階/階数
- 1階/4階
- 築年数
-
1979年
(昭和54)
8月
築46年 - 建ぺい率
- 容積率
- 土地権利
- 構造および階数
- RC(鉄筋コンクリート) 造 地上4階建
- 総戸数
- 8戸
- 小学校区
- 鈴が峰
- 中学校区
- 井口台
- 地目
- 現況
- 空
- 引渡時期
- 即時
- 駐車場
- 駐車場月額
- 管理形態
- 全部委託
- 管理方式
- 管理人日勤
- 管理会社
- 日本ハウズイング(株)
- 管理費
- 3,000円
- 修繕積立費
- 7,000円
- 上水道
- 下水道
- ガス
- 都市計画
- 市街化区域
- 用途地域
- 1種中高
- 設備・条件
- システムキッチン、食器洗浄乾燥機、シャンプードレッサー、モニタ付インターホン、洗浄便座
- 備考
-
用途地域:第一種中高層
専用庭使用料:600円/月 - 取引態様
- 仲介

