新築一戸建て 広島市南区青崎1丁目18-2
所在地
広島市南区青崎1丁目18-2
3,180万円
19.29坪
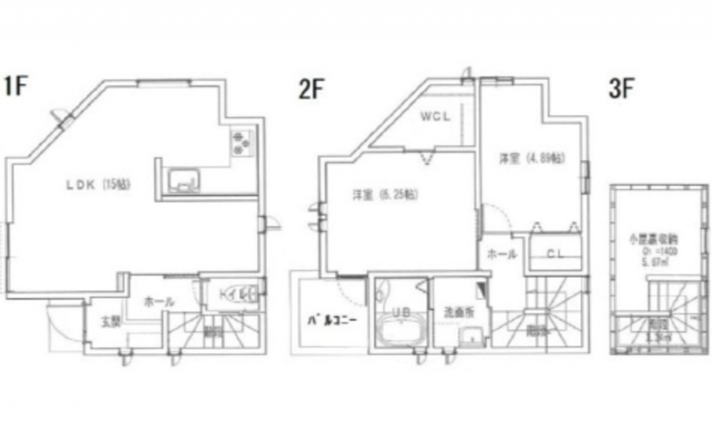
1F 15LD 2F 6.2洋 4.8洋 WIC 洗面 浴室 3F 4.8小屋裏収納
ZEH基準適合住宅
断熱性能等級5
一次エネルギー消費量等級6
オール電化エコキュート
月々の
支払例
支払例
万円
年
%
円
※呉信用金庫/借入金3,180万円、返済期間40年、金利0.925%変動金利)の場合
※審査により金利は変わる可能性があります。
物件概要
- 交通
-
JR呉線 向洋駅 まで 徒歩9分
- 接道状況
- 西側 公道4.8m 間口約2.7m
- 土地面積
- 63.65㎡ (19.25坪)
- 建物面積
- 63.78㎡ (19.29坪)
- 築年数
- 2026年 (令和8) 3月
- 建ぺい率
- 60%
- 容積率
- 200%
- 土地権利
- 構造および階数
- 地上3階建
- 小学校区
- 青崎
- 中学校区
- 大州
- 私道負担
- 地目
- 現況
- 引渡時期
- 駐車場
- 1台
- 上水道
- 公共
- 下水道
- 公共
- ガス
- 都市計画
- 市街化区域
- 用途地域
- 1種住居
- 設備・条件
- オール電化、システムキッチン、シャンプードレッサー、ウォークインクローゼット、エコキュート
- 備考
- 間口:2.7m
- 取引態様
- 仲介

