中古一戸建て 広島市東区戸坂新町2丁目25-
所在地
広島市東区戸坂新町2丁目25-
4,980万円
29.55坪
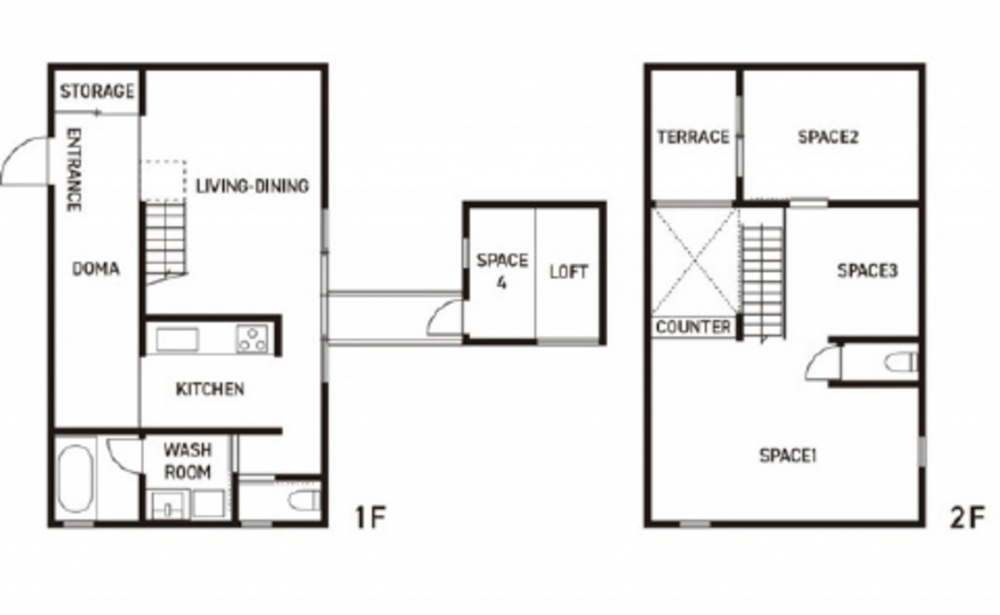
1F LDK 土間 ロフト 2F 洋 洋 トイレ
車種により3〜4台駐車可能 エコジョーズ 全居室フローリング
無垢材使用 リビング階段 ロフト 離れ オープン外構
専有面積25坪以上 南向き LDK15帖以上 土間 庭
システムキッチン トイレ2ヶ所 温水洗浄便座 納戸 閑静な住宅地
陽当り・通風良好 土地60坪以上
前道6m以上 接道幅10m以上 南側道路面す 角地
バス停徒歩3分以内
月々の
支払例
支払例
万円
年
%
円
※呉信用金庫/借入金4,980万円、返済期間40年、金利0.925%変動金利)の場合
※審査により金利は変わる可能性があります。
物件概要
- 交通
-
JR芸備線 戸坂駅 まで 徒歩22分
バス停東浄ショッピングセンター前 まで 徒歩2分
- 接道状況
-
東側 公道10.4m
南側 公道6.1m - 土地面積
- 220.74㎡ (66.77坪)
- 建物面積
- 97.70㎡ (29.55坪)
- 築年数
-
2020年
(令和2)
7月
築5年 - 建ぺい率
- 50%
- 容積率
- 100%
- 土地権利
- 構造および階数
- 木造 地上2階建
- 小学校区
- 東浄
- 中学校区
- 戸坂
- 私道負担
- 地目
- 現況
- 居住中
- 引渡時期
- 相談
- 駐車場
- 3台
- 上水道
- 下水道
- ガス
- 都市計画
- 市街化区域
- 用途地域
- 2種低層
- 設備・条件
- システムキッチン、カウンターキッチン、シャンプードレッサー、洗浄便座、ロフト、駐車場3台分、トイレ2箇所
- 備考
-
現状有姿での引き渡し
売主の契約不適合責任免責 - 取引態様
- 仲介

