新築一戸建て 広島市西区己斐大迫1丁目9-1
所在地
広島市西区己斐大迫1丁目9-1
3,295万円
29.30坪
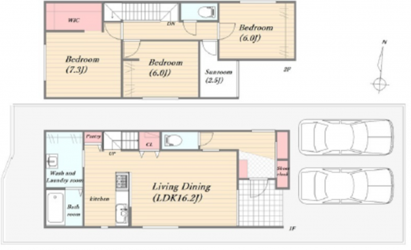
1F 16.2LDK SIC 2F 7.3洋 6洋 6洋 WIC 2.5サンルーム トイレ
オール電化 エコキュート サンルーム シューズインクローク 対面式システムキッチン
食器洗浄乾燥機 パントリー シャワー付洗面台 浴室1坪以上
TVモニター付インターホン
小学校まで徒歩8分 スーパーも徒歩圏内にあります
己斐上小学校徒歩8分
己斐上中学校徒歩11分 ピュアークック己斐上店徒歩4分
ローソン広島己斐上店徒歩3分 ウォンツ己斐上店徒歩8分
月々の
支払例
支払例
万円
年
%
円
※呉信用金庫/借入金3,295万円、返済期間40年、金利0.925%変動金利)の場合
※審査により金利は変わる可能性があります。
物件概要
- 交通
-
バス停日生東団地 まで 徒歩2分
- 接道状況
- 東側
- 土地面積
- 125.10㎡ (37.84坪)
- 建物面積
- 96.88㎡ (29.30坪)
- 築年数
- 2026年 (令和8) 2月
- 建ぺい率
- 50%
- 容積率
- 100%
- 土地権利
- 構造および階数
- 地上2階建
- 小学校区
- 己斐上
- 中学校区
- 己斐上
- 私道負担
- 地目
- 現況
- 引渡時期
- 駐車場
- 2台
- 上水道
- 下水道
- ガス
- 都市計画
- 市街化区域
- 用途地域
- 1種低層
- 建築確認番号
- 第R07認広建セ00803号
- 設備・条件
- オール電化、システムキッチン、カウンターキッチン、食器洗浄乾燥機、シャンプードレッサー、モニタ付インターホン、ウォークインクローゼット、駐車場2台分、エコキュート、トイレ2箇所
- 備考
- 取引態様
- 仲介

