新築一戸建て 広島市南区日宇那町12-
所在地
広島市南区日宇那町12-
4,580万円
30.44坪
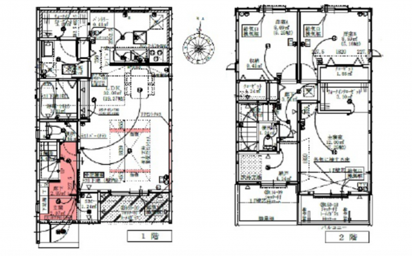
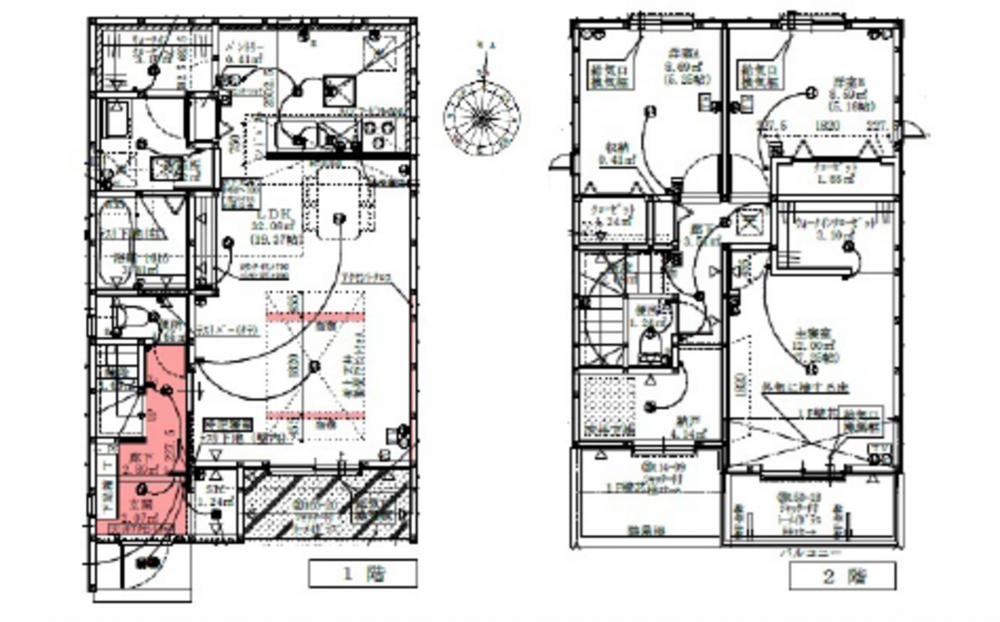
1F 19.37LDK WIC 2F 7.25洋 5.25洋 5.18洋 WIC 納戸 トイレ
設計・建設性能評価書取得 耐震等級3
フラット35S・金利Aプラン
適合証明取得代別途要93,500円(税込み)
オールペアガラス(アルミ樹脂複合) 地盤保証20年
長期優良住宅申請中
引渡後無料点検(6ヶ月、2年、5年)
月々の
支払例
支払例
万円
年
%
円
※呉信用金庫/借入金4,580万円、返済期間40年、金利0.925%変動金利)の場合
※審査により金利は変わる可能性があります。
物件概要
- 交通
-
バス停日宇那町 まで 徒歩4分
- 接道状況
- 南側 公道4m
- 土地面積
- 110.91㎡ (33.55坪)
- 建物面積
- 100.64㎡ (30.44坪)
- 築年数
- 2026年 (令和8) 5月 完成予定
- 建ぺい率
- 60%
- 容積率
- 160%
- 土地権利
- 構造および階数
- 地上2階建
- 小学校区
- 楠那
- 中学校区
- 楠那
- 私道負担
- 地目
- 現況
- 引渡時期
- 駐車場
- 2台
- 上水道
- 公共
- 下水道
- 公共
- ガス
- 都市ガス
- 都市計画
- 市街化区域
- 用途地域
- 1種住居
- 建築確認番号
- 第R08SHC101563号
- 設備・条件
- システムキッチン、カウンターキッチン、シャンプードレッサー、ウォークインクローゼット、複層ガラス、駐車場2台分、トイレ2箇所
- 備考
-
網戸・カーテンレール・照明・テレビアンテナ・
エアコン等はオプション 網戸施工は指定業者による
契約条件別途165,000円(税込)要 - 取引態様
- 仲介

