新築一戸建て 広島市南区北大河町8-
所在地
広島市南区北大河町8-
4,280万円
30.80坪
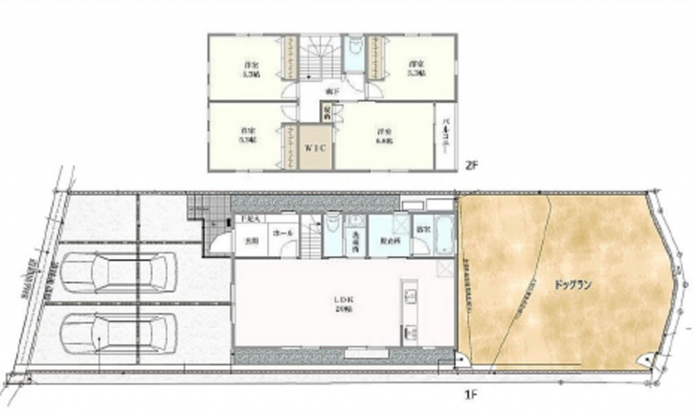
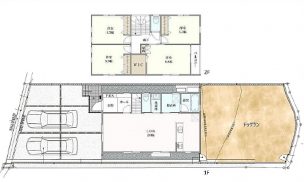
1F 20LDK 2F 6.8洋 5.3洋 5.3洋 5.3洋 WIC トイレ
裏庭のスペースにドッグラン有(家庭菜園なども可能です)
駐車3台可(車種による) 電化住宅 IH・エコキュート
照明付き(調光リモコン付き ダウンライトを除く)
敷地内の東側、南側に水路有り
大学病院まで約600m(徒歩8分)
マルショク旭町店約200m(徒歩3分)
月々の
支払例
支払例
万円
年
%
円
※呉信用金庫/借入金4,280万円、返済期間40年、金利0.925%変動金利)の場合
※審査により金利は変わる可能性があります。
物件概要
- 交通
-
バス停旭町 まで 徒歩5分
- 接道状況
- 北西側3m 間口約8.1m
- 土地面積
- 204.43㎡ (61.84坪)
- 建物面積
- 101.85㎡ (30.80坪)
- 築年数
- 2025年 (令和7) 9月
- 建ぺい率
- 50%
- 容積率
- 100%
- 土地権利
- 構造および階数
- 地上2階建
- 小学校区
- 黄金山
- 中学校区
- 仁保
- 私道負担
- 地目
- 現況
- 引渡時期
- 駐車場
- 3台
- 上水道
- 公共
- 下水道
- 公共
- ガス
- 都市ガス
- 都市計画
- 市街化区域
- 用途地域
- 1種低層
- 建築確認番号
- 第R06認広建セ02443号
- 設備・条件
- オール電化、システムキッチン、カウンターキッチン、IHクッキングヒーター、シャンプードレッサー、ウォークインクローゼット、駐車場3台分、エコキュート、トイレ2箇所
- 備考
-
土砂災害警戒区域(一部土砂災害特別警戒区域)
宅地造成等規制法 景観法(一般区域) 居住誘導区域
セットバック要:4.1㎡ 間口:8.1m - 取引態様
- 仲介

