新築一戸建て 広島市中区吉島西1丁目6-2
所在地
広島市中区吉島西1丁目6-2
4,796万円
27.61坪
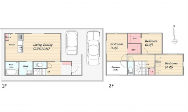
1F 15.8LDK 2F 6洋 6洋 6洋 WIC 3サンルーム トイレ
雨の日でも洗濯安心のサンルーム
吉島稲生神社・吉島湯がある昔ながらの優しい地域です
徒歩15分圏内にスーパー・学校・病院が揃っています
アーベル吉島店徒歩2分 日赤病院徒歩14分
ダイソー吉島店徒歩4分
月々の
支払例
支払例
万円
年
%
円
※呉信用金庫/借入金4,796万円、返済期間40年、金利0.925%変動金利)の場合
※審査により金利は変わる可能性があります。
物件概要
- 交通
-
広島電鉄江波線 舟入川口町駅 まで 徒歩18分
広島電鉄江波線 舟入南駅 まで 徒歩15分
バス停吉島1丁目 まで 徒歩3分
- 接道状況
- 北側
- 土地面積
- 99.20㎡ (30.00坪)
- 建物面積
- 91.29㎡ (27.61坪)
- 築年数
- 2026年 (令和8) 4月 完成予定
- 建ぺい率
- 60%
- 容積率
- 160%
- 土地権利
- 構造および階数
- 地上2階建
- 小学校区
- 中島
- 中学校区
- 吉島
- 私道負担
- 地目
- 現況
- 引渡時期
- 駐車場
- 2台
- 上水道
- 公共
- 下水道
- 公共
- ガス
- 都市ガス
- 都市計画
- 市街化区域
- 用途地域
- 2種住居
- 建築確認番号
- 第R07認広建セ01364号
- 設備・条件
- システムキッチン、カウンターキッチン、シャンプードレッサー、駐車場2台分、トイレ2箇所
- 備考
- 宅地造成工事規制区域 準防火地域 景観地区
- 取引態様
- 仲介

