中古一戸建て 広島市中区千田町2丁目8-
所在地
広島市中区千田町2丁目8-
5,780万円
34.56坪
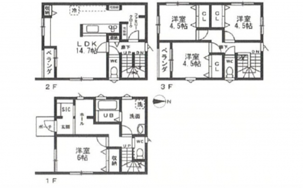
1F6洋 浴室 洗面 SIC 玄関 2F14.7LDK ファミリークローク トイレ 3F4.5洋 4.5洋 4.5洋 トイレ
千田小学校徒歩9分(約700m) 国泰寺中学校徒歩20分(約1,550m)
アイグラン保育園東千田約220m(徒歩3分)
セブンイレブン広島御幸橋店約160m(徒歩2分)
マックスバリュ千田店約350m(徒歩5分)
ウォンツ皆実町店約700m(徒歩9分) ゆめタウン広島約650m(徒歩9分)
月々の
支払例
支払例
万円
年
%
円
※呉信用金庫/借入金5,780万円、返済期間40年、金利0.925%変動金利)の場合
※審査により金利は変わる可能性があります。
物件概要
- 交通
-
広島電鉄宇品線 広電本社前駅 まで 徒歩3分
- 接道状況
- 南側 公道7.39m
- 土地面積
- 105.96㎡ (32.05坪)
- 建物面積
- 114.26㎡ (34.56坪)
- 築年数
-
2024年
(令和6)
8月
築1年 - 建ぺい率
- 60%
- 容積率
- 300%
- 土地権利
- 構造および階数
- 地上3階建
- 小学校区
- 千田
- 中学校区
- 国泰寺
- 私道負担
- 地目
- 現況
- 引渡時期
- 駐車場
- 上水道
- 下水道
- ガス
- 都市計画
- 市街化区域
- 用途地域
- 2種住居
- 建築確認番号
- R05認広建セ02324
- 設備・条件
- システムキッチン、カウンターキッチン、シャンプードレッサー、トイレ2箇所
- 備考
-
住宅部分床面積:109.62㎡(33.16坪)
準防火地域 - 取引態様
- 仲介

