新築一戸建て 呉市広中新開3丁目11-14
所在地
呉市広中新開3丁目11-14
3,840万円
30.61坪
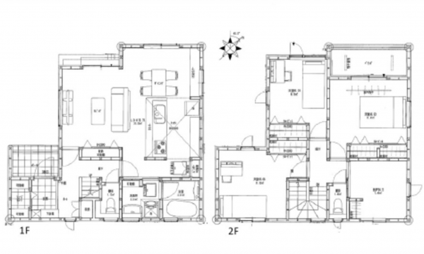
1F 18.75LDK SIC 2F 6.93洋 6.66洋 5.29洋 4.5納戸 トイレ
在来工法 施工:トータテハウジング 外構付
フラット35S使用可能(但し、期限内に限ります)
瑕疵担保保険付 カップボードあり 乾太くんあり
月々の
支払例
支払例
万円
年
%
円
※呉信用金庫/借入金3,840万円、返済期間40年、金利0.925%変動金利)の場合
※審査により金利は変わる可能性があります。
物件概要
- 交通
-
バス停弁天橋 まで 徒歩3分
- 接道状況
- 北西側 公道10.3m
- 土地面積
- 105.81㎡ (32.00坪)
- 建物面積
- 101.22㎡ (30.61坪)
- 築年数
- 2025年 (令和7) 5月
- 建ぺい率
- 60%
- 容積率
- 200%
- 土地権利
- 構造および階数
- 地上2階建
- 小学校区
- 広
- 中学校区
- 広中央
- 私道負担
- 地目
- 現況
- 引渡時期
- 駐車場
- 上水道
- 公共
- 下水道
- 公共
- ガス
- 都市ガス
- 都市計画
- 市街化区域
- 用途地域
- 1種住居
- 建築確認番号
- R06認広建セ02152
- 設備・条件
- システムキッチン、カウンターキッチン、シャンプードレッサー、床下収納、トイレ2箇所
- 備考
-
ゴミステーション(持分1/18)・電柱あり
準防火地域 - 取引態様
- 仲介

