中古一戸建て 呉市広大広1丁目5-62-
所在地
呉市広大広1丁目5-62-
2,650万円
31.61坪
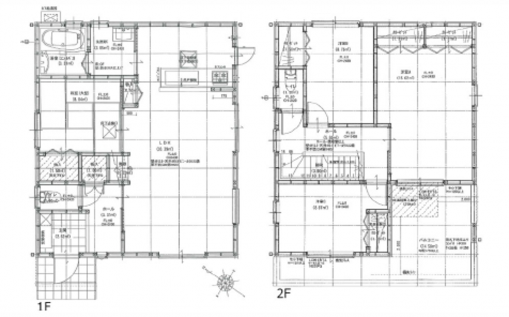
1F 18.3LDK 4.9和 2F 9.4洋 5.3洋 5.2洋 トイレ
南西向き 24時間換気システム 閑静な住宅街 低炭素住宅
追焚機能 浴室乾燥機 温水洗浄便座 シャワー付洗面化粧台
3口以上コンロ カウンターキッチン システムキッチン 食器洗浄乾燥機
浄水器 全居室収納 床下収納 照明器具 ダウンライト
室内物干し 複層ガラス ダブルロックドア モニタ付インターホン
ディンプルキー ルーフバルコニー 駐車場3台分以上
月々の
支払例
支払例
万円
年
%
円
※呉信用金庫/借入金2,650万円、返済期間40年、金利0.925%変動金利)の場合
※審査により金利は変わる可能性があります。
物件概要
- 交通
-
JR呉線 新広駅 まで 徒歩28分
- 接道状況
- 南西側 公道5m 間口約8.1m
- 土地面積
- 136.43㎡ (41.27坪)
- 建物面積
- 104.50㎡ (31.61坪)
- 築年数
-
2015年
(平成27)
8月
築10年 - 建ぺい率
- 60%
- 容積率
- 200%
- 土地権利
- 構造および階数
- 木造 スレート葺 造 地上2階建
- 小学校区
- 横路
- 中学校区
- 横路
- 私道負担
- 地目
- 現況
- 空
- 引渡時期
- 即時
- 駐車場
- 3台
- 上水道
- 公共
- 下水道
- 公共
- ガス
- 都市ガス
- 都市計画
- 市街化区域
- 用途地域
- 1種住居
- 設備・条件
- システムキッチン、カウンターキッチン、食器洗浄乾燥機、シャンプードレッサー、浴室乾燥機、モニタ付インターホン、洗浄便座、複層ガラス、追い焚き、駐車場3台分、床下収納、トイレ2箇所
- 備考
-
間口:8.1m
令和7年固定資産税額:109,684円/年 - 取引態様
- 仲介

