新築一戸建て 広島市南区東雲3丁目12-
所在地
広島市南区東雲3丁目12-
4,980万円
32.06坪
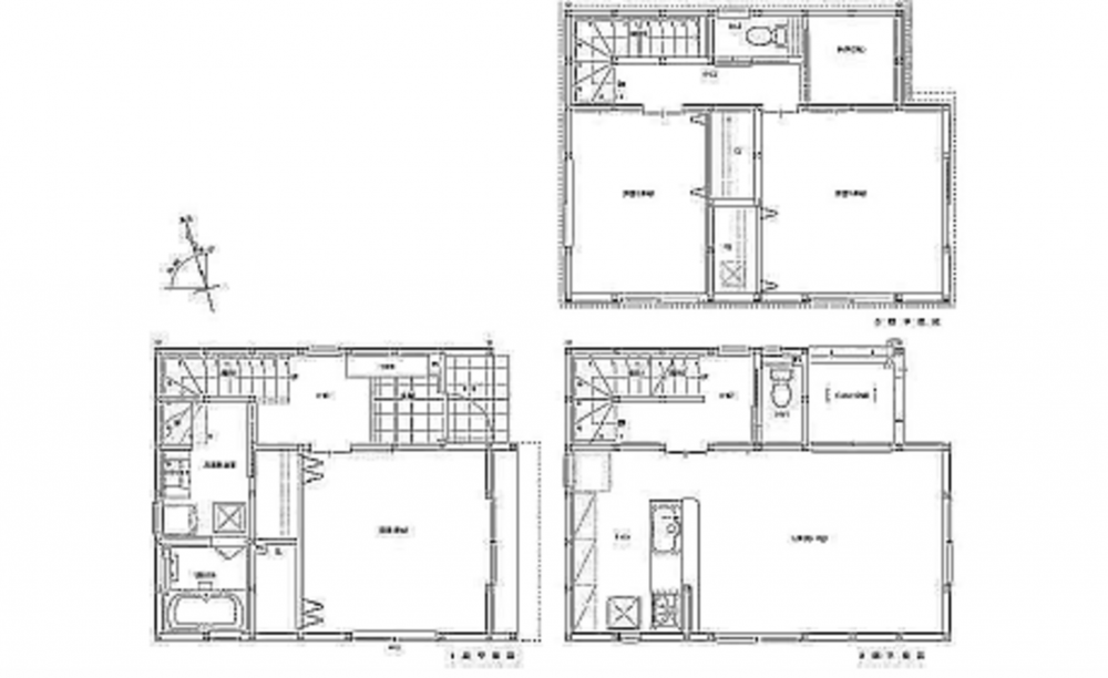
1F 8洋 洗面 浴室 2F 16.1LDK トイレ 3F 8洋 6洋 2納戸 トイレ
木造在来工法 省令準耐火構造 ベタ基礎 オール電化住宅
フラット35S(金利Bプラン)対応 エコキュート IHクッキングヒーター
食器洗浄乾燥機 居室窓Low-Eペアガラス 玄関電気錠システム
EV自動車用回路 浴室換気乾燥暖房機 トイレ洗浄便座
平地
徒歩圏内にスーパーやドラッグストア、飲食店が充実しています
月々の
支払例
支払例
万円
年
%
円
※呉信用金庫/借入金4,980万円、返済期間40年、金利0.925%変動金利)の場合
※審査により金利は変わる可能性があります。
物件概要
- 交通
-
バス停東雲 まで 徒歩5分
- 接道状況
- 東側 公道7.8m
- 土地面積
- 76.38㎡ (23.10坪)
- 建物面積
- 105.99㎡ (32.06坪)
- 築年数
- 2026年 (令和8) 5月
- 建ぺい率
- 60%
- 容積率
- 200%
- 土地権利
- 構造および階数
- 地上3階建
- 小学校区
- 比治山
- 中学校区
- 段原
- 私道負担
- 地目
- 現況
- 引渡時期
- 駐車場
- 上水道
- 公共
- 下水道
- 公共
- ガス
- 都市計画
- 市街化区域
- 用途地域
- 準工業
- 建築確認番号
- HP16-4096533
- 設備・条件
- オール電化、IHクッキングヒーター、食器洗浄乾燥機、浴室乾燥機、洗浄便座、複層ガラス、エコキュート、トイレ2箇所
- 備考
-
水道負担金別途要13.75万円
南側私道の持分有 - 取引態様
- 仲介

