新築一戸建て 広島市西区己斐上5丁目66-
所在地
広島市西区己斐上5丁目66-
3,890万円
33.95坪
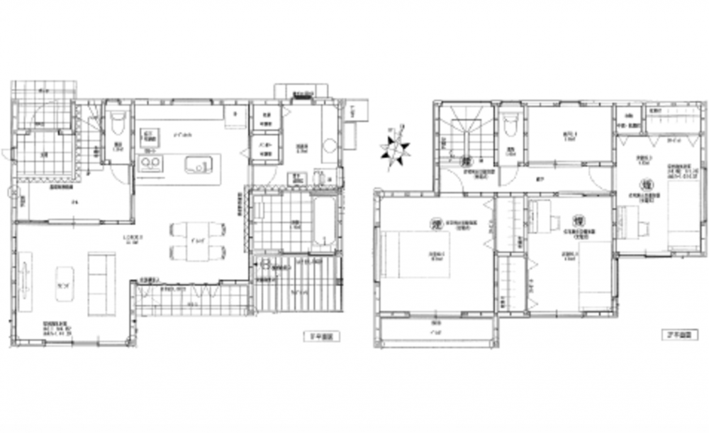
1F 20LDK 2F 8洋 6洋 6洋 3納戸 トイレ
3LDK 駐車3台可
月々の
支払例
支払例
万円
年
%
円
※広島銀行/借入金3,890万円、返済期間35年、金利0.700%変動金利)の場合
※審査により金利は変わる可能性があります。
物件概要
- 交通
-
バス停広電己斐団地 まで 徒歩6分
- 接道状況
- 北西側 公道6.2m
- 土地面積
- 238.81㎡ (72.24坪)
- 建物面積
- 112.25㎡ (33.95坪)
- 築年数
- 2026年 (令和8) 5月 完成予定
- 建ぺい率
- 50%
- 容積率
- 100%
- 土地権利
- 構造および階数
- 地上2階建
- 小学校区
- 己斐上
- 中学校区
- 己斐上
- 私道負担
- 地目
- 現況
- 引渡時期
- 駐車場
- 3台
- 上水道
- 下水道
- 公共
- ガス
- 都市計画
- 市街化区域
- 用途地域
- 1種低層
- 建築確認番号
- 第R07認広建セ00950号
- 設備・条件
- システムキッチン、カウンターキッチン、駐車場3台分、床下収納、トイレ2箇所
- 備考
- 土砂災害警戒区域、一部土砂災害特別警戒区域
- 取引態様
- 仲介

