新築一戸建て 広島市南区旭2丁目4-3
所在地
広島市南区旭2丁目4-3
4,490万円
29.92坪
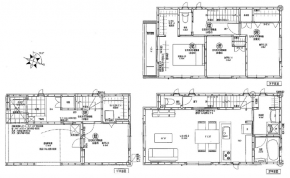
1F5.25納戸 WIC 車庫 2F16LDK 浴室 洗面 トイレ 3F5.25洋 5.25納戸 4.14納戸 WIC トイレ
工法:在来工法 施工:トータテハウジング
外構付 瑕疵担保保険付
フラット35S使用可能(但し、期限内に限ります)
カップボードあり
ガス衣類乾燥機(乾太くん)設置
3階2室エアコン取付
月々の
支払例
支払例
万円
年
%
円
※呉信用金庫/借入金4,490万円、返済期間40年、金利0.925%変動金利)の場合
※審査により金利は変わる可能性があります。
物件概要
- 交通
-
バス停旭町 まで 徒歩3分
- 接道状況
- 南東側3.5m
- 土地面積
- 65.04㎡ (19.67坪)
- 建物面積
- 98.94㎡ (29.92坪)
- 築年数
-
2025年
(令和7)
3月
築1年 - 建ぺい率
- 60%
- 容積率
- 200%
- 土地権利
- 構造および階数
- 地上3階建
- 小学校区
- 大河
- 中学校区
- 翠町
- 私道負担
- 地目
- 現況
- 引渡時期
- 駐車場
- 上水道
- 公共
- 下水道
- 公共
- ガス
- 都市ガス
- 都市計画
- 市街化区域
- 用途地域
- 1種住居
- 建築確認番号
- R06認広建セ00957
- 設備・条件
- システムキッチン、カウンターキッチン、シャンプードレッサー、ウォークインクローゼット、トイレ2箇所
- 備考
- セットバック前土地面積:66.35㎡(20.07坪)
- 取引態様
- 仲介

