新築一戸建て 呉市広大新開2丁目14-1
所在地
呉市広大新開2丁目14-1
3,980万円
31.72坪
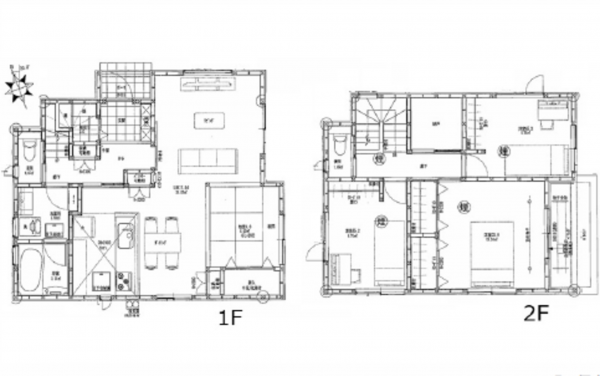
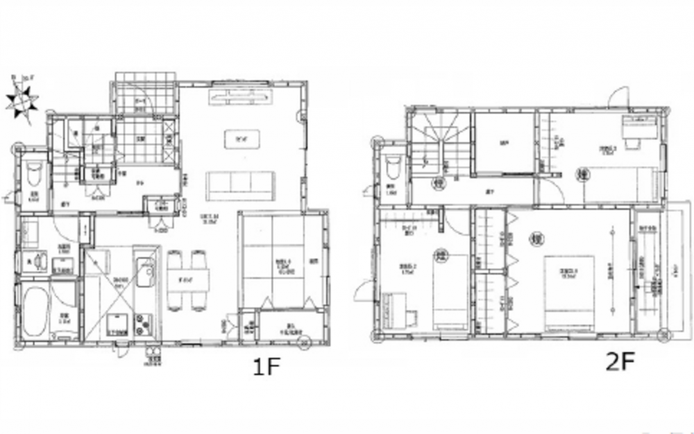
1F 17.84LDK 4和 SIC 2F 8洋 5.2洋 5.2洋 納戸 トイレ
工法:在来工法 施工:トータテハウジング
外構付 瑕疵担保保険付
フラット35S使用可能(但し、期限内に限ります)
カップボードあり
月々の
支払例
支払例
万円
年
%
円
※呉信用金庫/借入金3,980万円、返済期間40年、金利0.925%変動金利)の場合
※審査により金利は変わる可能性があります。
物件概要
- 交通
-
バス停広商店街 まで 徒歩5分
- 接道状況
-
北西側 公道4.7m
北東側 私道5m - 土地面積
- 142.67㎡ (43.15坪)
- 建物面積
- 104.89㎡ (31.72坪)
- 築年数
-
2025年
(令和7)
3月
築1年 - 建ぺい率
- 60%
- 容積率
- 200%
- 土地権利
- 構造および階数
- 地上2階建
- 小学校区
- 広
- 中学校区
- 広中央
- 私道負担
- 地目
- 現況
- 引渡時期
- 駐車場
- 上水道
- 公共
- 下水道
- 公共
- ガス
- 都市ガス
- 都市計画
- 市街化区域
- 用途地域
- 1種住居
- 建築確認番号
- R06認広建セ01540
- 設備・条件
- システムキッチン、カウンターキッチン、シャンプードレッサー、床下収納、トイレ2箇所
- 備考
-
河川等占用権利譲渡承認申請の記載あり
(河川等占用料がかかります)
道路位置指定 令和6年8月29日 呉都指指令第504号 - 取引態様
- 仲介

