新築一戸建て 広島市南区丹那町24-2
所在地
広島市南区丹那町24-2
4,480万円
31.43坪
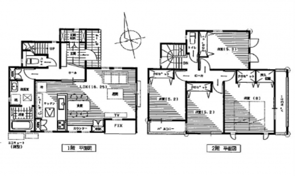
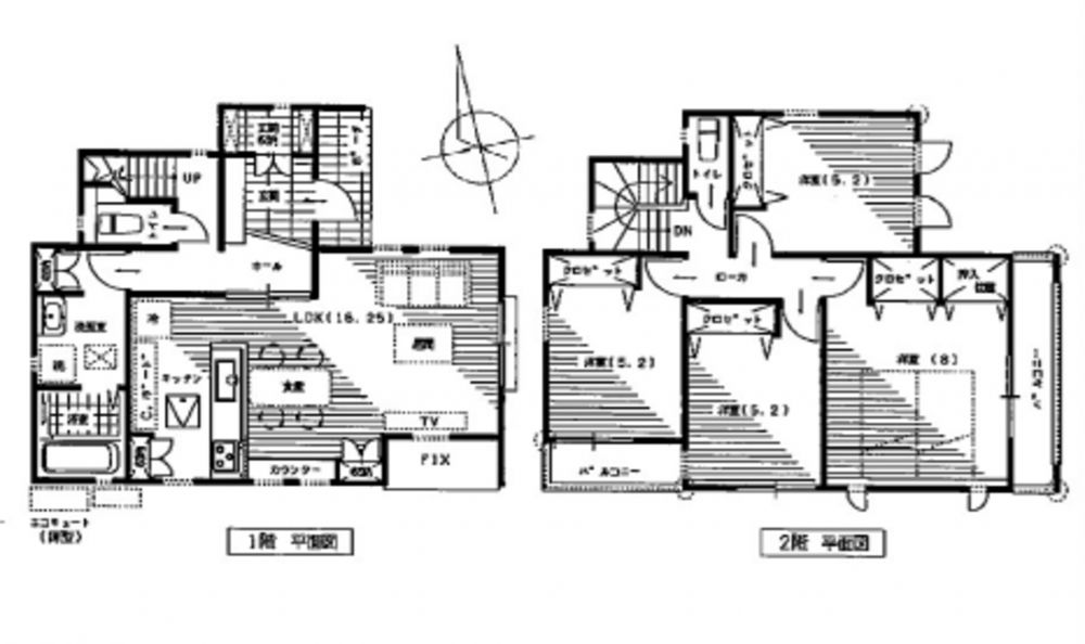
1F 16.25LDK 玄関収納 2F 8洋 5.2洋 5.2洋 5.2洋 トイレ
準防火仕様 省エネ基準適合住宅 オール電化(エコキュート)
制振ダンパー(住友ゴムMAMORY) フラット35S(金利Bプラン)対応
瑕疵担保責任保険(まもりすまい保険) 食器洗乾燥機
カップボード 浴室乾燥機能 1階・2階ウォシュレットトイレ
オールLow-Eペアガラス アルミ樹脂複合サッシ 玄関ドア電子錠
スタディカウンター(1階ダイニング) 外構付き 玄関クローク ダブルバルコニー
月々の
支払例
支払例
万円
年
%
円
※呉信用金庫/借入金4,480万円、返済期間40年、金利0.925%変動金利)の場合
※審査により金利は変わる可能性があります。
物件概要
- 交通
-
バス停丹那町 まで 徒歩4分
- 接道状況
- 東側3.47~3.48m
- 土地面積
- 111.93㎡ (33.85坪)
- 建物面積
- 103.92㎡ (31.43坪)
- 築年数
- 2026年 (令和8) 4月 完成予定
- 建ぺい率
- 60%
- 容積率
- 160%
- 土地権利
- 構造および階数
- 地上2階建
- 小学校区
- 楠那
- 中学校区
- 楠那
- 私道負担
- 地目
- 現況
- 引渡時期
- 駐車場
- 2台
- 上水道
- 公共
- 下水道
- 公共
- ガス
- 都市計画
- 市街化区域
- 用途地域
- 1種住居
- 建築確認番号
- 第R07認広建セ01002号
- 設備・条件
- オール電化、システムキッチン、カウンターキッチン、食器洗浄乾燥機、シャンプードレッサー、浴室乾燥機、洗浄便座、複層ガラス、駐車場2台分、エコキュート、トイレ2箇所
- 備考
- 取引態様
- 仲介

