中古一戸建て 広島市東区矢賀4丁目8-
所在地
広島市東区矢賀4丁目8-
3,480万円
22.17坪
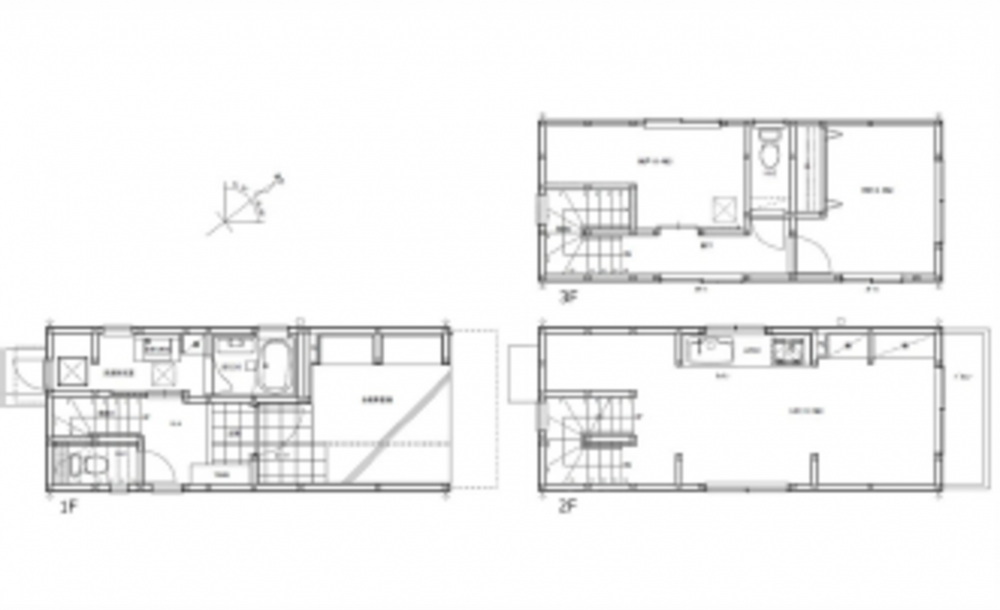
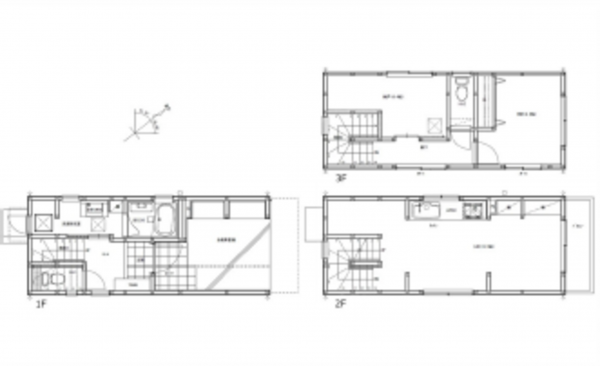
1F 洗面 浴室 トイレ 2F 13LDK 3F 4.8洋 4.4納戸 トイレ
木造在来工法 ベタ基礎 オール電化住宅
エコキュート IHクッキングヒーター
食器洗浄乾燥機 居室窓Low-Eペアガラス
玄関電気錠システム 浴室換気乾燥暖房機
トイレ洗浄便座 利便性良好
イオンモール、エディオン徒歩7分 小学校徒歩5分
月々の
支払例
支払例
万円
年
%
円
※呉信用金庫/借入金3,480万円、返済期間40年、金利0.925%変動金利)の場合
※審査により金利は変わる可能性があります。
物件概要
- 交通
-
JR芸備線 矢賀駅 まで 徒歩4分
バス停矢賀駅入口 まで 徒歩4分
- 接道状況
- 北東側 公道4m
- 土地面積
- 44.16㎡ (13.35坪)
- 建物面積
- 73.29㎡ (22.17坪)
- 築年数
-
2024年
(令和6)
10月
築1年 - 建ぺい率
- 60%
- 容積率
- 200%
- 土地権利
- 構造および階数
- 地上3階建
- 小学校区
- 矢賀
- 中学校区
- 二葉
- 私道負担
- 地目
- 現況
- 引渡時期
- 駐車場
- 上水道
- 公共
- 下水道
- 公共
- ガス
- 都市計画
- 市街化区域
- 用途地域
- 準工業
- 設備・条件
- オール電化、システムキッチン、IHクッキングヒーター、食器洗浄乾燥機、シャンプードレッサー、浴室乾燥機、洗浄便座、複層ガラス、エコキュート、トイレ2箇所
- 備考
- 水道負担金別途要:13.75万円
- 取引態様
- 仲介

