新築一戸建て 呉市本通3丁目7-
所在地
呉市本通3丁目7-
4,880万円
32.81坪
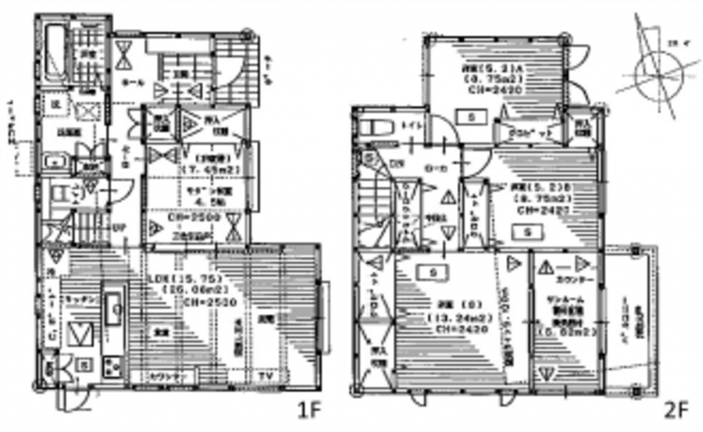
1F 15.75LDK 4.5和 2F 8洋 5.2洋 5.2洋 サンルーム トイレ ファミリークローク
準防火仕様 外壁光セラ(KMEW) 制振ダンバー(住友ゴムMAMORY)
フラット35S(金利Bプラン)対応 オール電化(エコキュート) IHクッキングヒーター
瑕疵担保責任保険(まもりすまい保険) 食器洗乾燥機
カップボード 浴室乾燥機 1・2階ウォシュレットトイレ オールLow-Eペアガラス
アルミ樹脂複合サッシ 玄関ドア電子錠 スタディーカウンター(1階ダイニング)
梁出し天井(1階LD) 南向のサンルーム(2階主寝室・作業カウンター付)
月々の
支払例
支払例
万円
年
%
円
※呉信用金庫/借入金4,880万円、返済期間40年、金利0.925%変動金利)の場合
※審査により金利は変わる可能性があります。
物件概要
- 交通
-
JR呉線 呉駅 まで 徒歩15分
バス停四ツ道路 まで 徒歩3分
- 接道状況
-
南側 公道6m
東側 公道4m - 土地面積
- 146.68㎡ (44.37坪)
- 建物面積
- 108.47㎡ (32.81坪)
- 築年数
- 2026年 (令和8) 4月 完成予定
- 建ぺい率
- 80%
- 容積率
- 300%
- 土地権利
- 構造および階数
- 地上2階建
- 小学校区
- 和庄
- 中学校区
- 和庄
- 私道負担
- 地目
- 現況
- 引渡時期
- 駐車場
- 2台
- 上水道
- 公共
- 下水道
- 公共
- ガス
- 都市計画
- 市街化区域
- 用途地域
- 近隣商業
- 建築確認番号
- 第R07認広建セ00966号
- 設備・条件
- オール電化、システムキッチン、カウンターキッチン、IHクッキングヒーター、食器洗浄乾燥機、シャンプードレッサー、浴室乾燥機、洗浄便座、複層ガラス、駐車場2台分、エコキュート、トイレ2箇所
- 備考
-
南東向きのバルコニー 並列駐車可 外構付 東南角地
勝手口 省エネ基準適合住宅 - 取引態様
- 仲介

