中古一戸建て 呉市阿賀中央8丁目5-
所在地
呉市阿賀中央8丁目5-
3,950万円
34.81坪
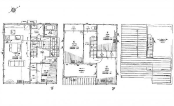
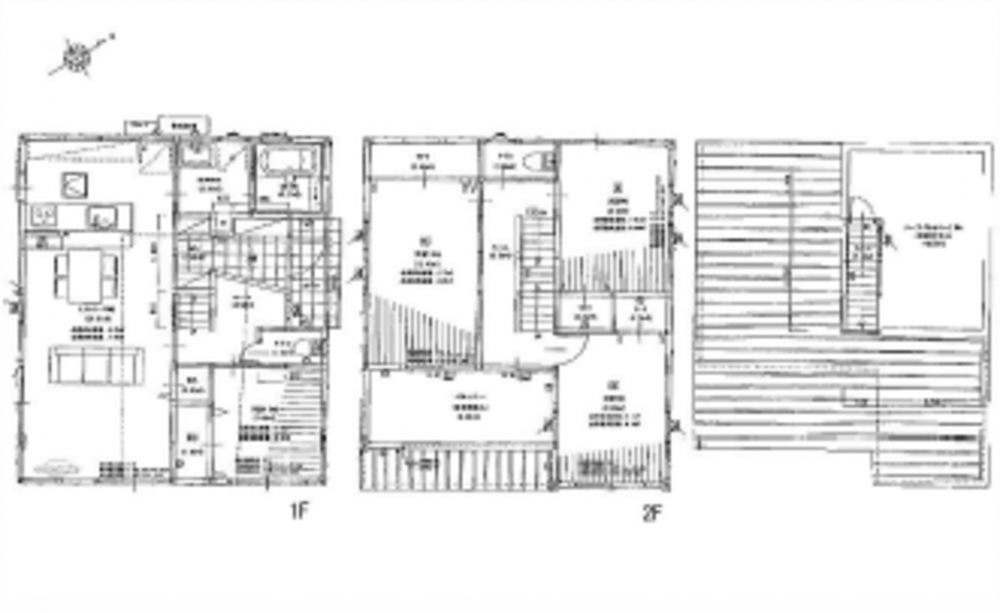
1F 19LDK 4.5洋 SIC 2F 7.5洋 6洋 6洋 トイレ
オール電化 太陽光発電システム 駐車3台以上可
LDK18帖以上 システムキッチン 陽当り良好
駅まで平坦 シャワー付洗面化粧台 対面式キッチン
バリアフリー 複層ガラス IHクッキングヒーター
ルーフバルコニー 食器洗乾燥機
月々の
支払例
支払例
万円
年
%
円
※呉信用金庫/借入金3,950万円、返済期間40年、金利0.925%変動金利)の場合
※審査により金利は変わる可能性があります。
物件概要
- 交通
-
JR呉線 安芸阿賀駅 まで 徒歩8分
バス停東町 まで 徒歩1分
- 接道状況
- 南東側 公道13m
- 土地面積
- 131.32㎡ (39.72坪)
- 建物面積
- 115.09㎡ (34.81坪)
- 築年数
-
2018年
(平成30)
3月
築8年 - 建ぺい率
- 80%
- 容積率
- 300%
- 土地権利
- 構造および階数
- 木造 地上2階建
- 小学校区
- 阿賀
- 中学校区
- 阿賀
- 私道負担
- 地目
- 現況
- 居住中
- 引渡時期
- 駐車場
- 3台
- 上水道
- 公共
- 下水道
- 公共
- ガス
- 都市計画
- 市街化区域
- 用途地域
- 近隣商業
- 設備・条件
- オール電化、ルーフバルコニー、システムキッチン、カウンターキッチン、IHクッキングヒーター、食器洗浄乾燥機、シャンプードレッサー、複層ガラス、駐車場3台分、トイレ2箇所
- 備考
- 取引態様
- 仲介

