新築一戸建て 呉市八幡町5-
所在地
呉市八幡町5-
3,780万円
30.24坪
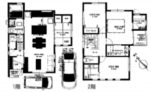
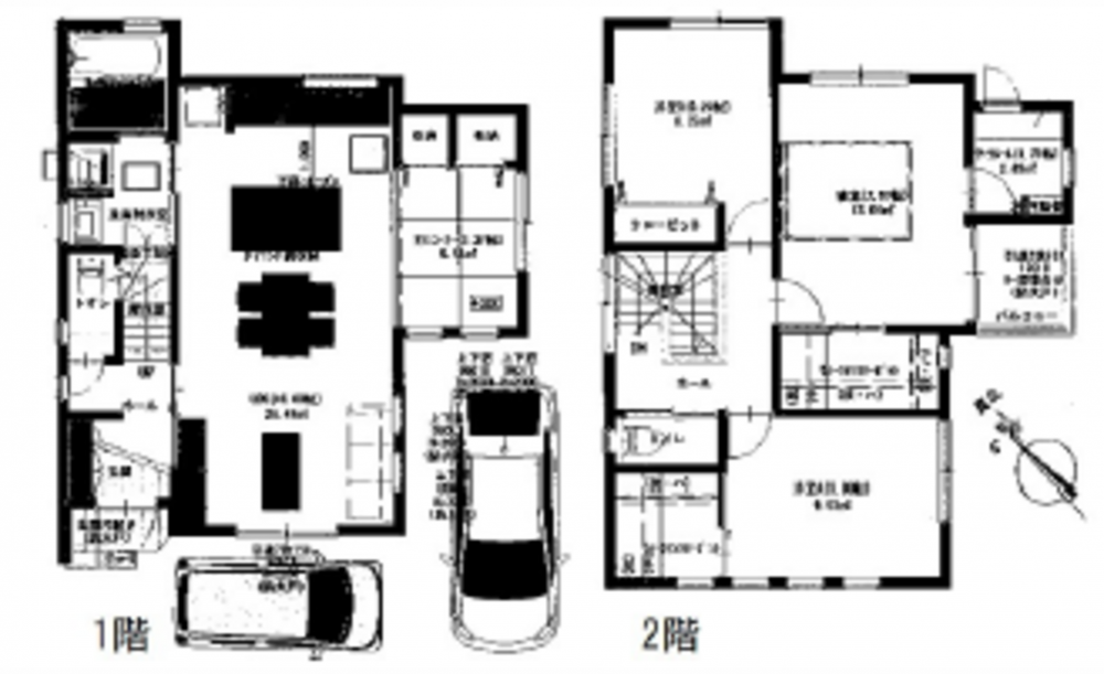
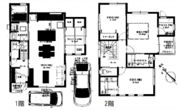
1F 16LDK 3.37畳コーナー 2F 7.87洋 6洋 5.28洋 1.75ワークルーム WIC トイレ
準防火仕様 制振ダンパー(住友ゴムMAMORY) 2台駐車可能
フラット35S(金利Bプラン)対応 都市ガス(エコジョーズ) 外構付
瑕疵担保責任保険(まもりすまい保険) 食器洗乾燥機
ガス乾燥機付(リンナイ乾太君) 3口ガスコンロ(グリル付)
浴室乾燥機能 1階・2階ウォシュレットトイレ オールLow-Eペアガラス
アルミ樹脂複合サッシ 玄関ドア電子錠 小上がりのあるタタミコーナー
月々の
支払例
支払例
万円
年
%
円
※呉信用金庫/借入金3,780万円、返済期間40年、金利0.925%変動金利)の場合
※審査により金利は変わる可能性があります。
物件概要
- 交通
-
JR呉線 呉駅 まで 徒歩15分
バス停四道路 まで 徒歩4分
- 接道状況
- 南西側3.95m
- 土地面積
- 99.97㎡ (30.24坪)
- 建物面積
- 99.98㎡ (30.24坪)
- 築年数
- 2025年 (令和7) 7月
- 建ぺい率
- 60%
- 容積率
- 160%
- 土地権利
- 構造および階数
- 地上2階建
- 小学校区
- 和庄
- 中学校区
- 和庄
- 私道負担
- 地目
- 現況
- 引渡時期
- 駐車場
- 2台
- 上水道
- 公共
- 下水道
- 公共
- ガス
- 都市ガス
- 都市計画
- 市街化区域
- 用途地域
- 1種住居
- 建築確認番号
- 第R06認広建セ02465号
- 設備・条件
- システムキッチン、食器洗浄乾燥機、シャンプードレッサー、浴室乾燥機、ウォークインクローゼット、複層ガラス、駐車場2台分、トイレ2箇所
- 備考
-
Ⅱ型アイランドキッチン(ドゥーブルキッチン) 書斎(2階主寝室)
ウォークインクローゼット(2階主寝室・洋室A) 南向きバルコニー
外壁光セラ(KMEW) - 取引態様
- 仲介

