新築一戸建て 呉市広文化町18-1
所在地
呉市広文化町18-1
3,680万円
30.87坪
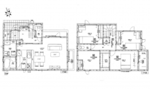
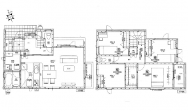
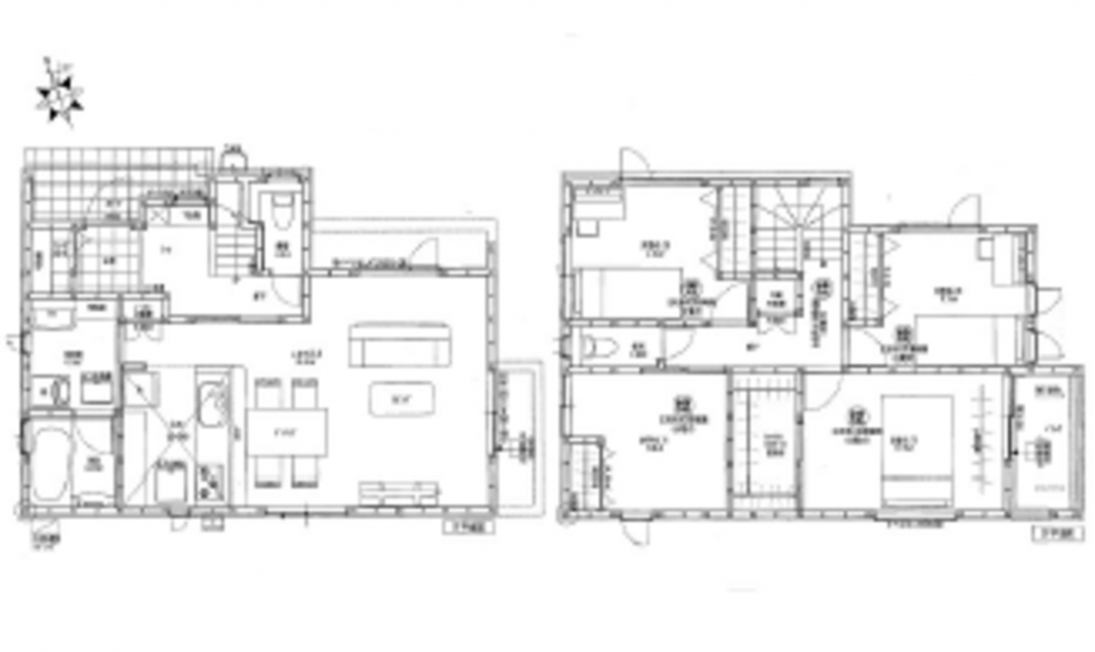
1F 18LDK SIC 2F 6.75洋 5.29洋 5.29洋 4.71納戸 WIC トイレ
在来工法 施工:トータテハウジング 外構付
フラット35S使用可能(但し、期限内に限ります)
瑕疵担保保険付 カップボードあり 角地
月々の
支払例
支払例
万円
年
%
円
※呉信用金庫/借入金3,680万円、返済期間40年、金利0.925%変動金利)の場合
※審査により金利は変わる可能性があります。
物件概要
- 交通
-
JR呉線 新広駅 まで 徒歩6分
バス停広市民バスセンター まで 徒歩5分
- 接道状況
-
北側3.95m
東側 公道4.4m - 土地面積
- 107.21㎡ (32.43坪)
- 建物面積
- 102.06㎡ (30.87坪)
- 築年数
-
2024年
(令和6)
12月
築1年 - 建ぺい率
- 60%
- 容積率
- 200%
- 土地権利
- 構造および階数
- 地上2階建
- 小学校区
- 横路
- 中学校区
- 横路
- 私道負担
- 地目
- 現況
- 引渡時期
- 駐車場
- 上水道
- 公共
- 下水道
- 公共
- ガス
- 都市ガス
- 都市計画
- 市街化区域
- 用途地域
- 1種住居
- 建築確認番号
- 第R06認広建セ00864号
- 設備・条件
- システムキッチン、カウンターキッチン、シャンプードレッサー、洗浄便座、ウォークインクローゼット、床下収納、トイレ2箇所
- 備考
- セットバック後の土地面積:106.83㎡
- 取引態様
- 仲介

