中古一戸建て 呉市広大新開1丁目2-
所在地
呉市広大新開1丁目2-
3,097万円
34.56坪
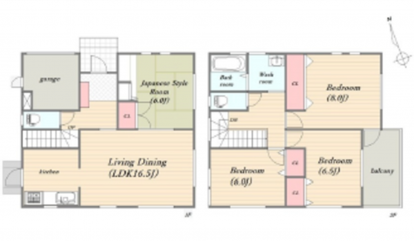
1F 16.5LDK 6和 ガレージ 2F 8洋 6.5洋 6洋 浴室 洗面 トイレ
2025年9月リフォーム完了 JR広駅まで徒歩圏内
小学校やスーパーなど周辺環境も充実しています
白岳小学校徒歩5分 白岳中学校徒歩10分
とくふう幼稚園徒歩9分 名田保育園徒歩8分
イオン広店徒歩4分 藤三広店徒歩7分
セブンイレブン呉市広中町店徒歩2分
月々の
支払例
支払例
万円
年
%
円
※呉信用金庫/借入金3,097万円、返済期間40年、金利0.925%変動金利)の場合
※審査により金利は変わる可能性があります。
物件概要
- 交通
-
JR呉線 広駅 まで 徒歩11分
バス停広交叉点 まで 徒歩3分
- 接道状況
- 北側
- 土地面積
- 114.77㎡ (34.71坪)
- 建物面積
- 114.27㎡ (34.56坪)
- 築年数
-
2006年
(平成18)
11月
築19年 - 建ぺい率
- 80%
- 容積率
- 300%
- 土地権利
- 構造および階数
- 地上2階建
- 小学校区
- 白岳
- 中学校区
- 白岳
- 私道負担
- 地目
- 現況
- 空
- 引渡時期
- 即時
- 駐車場
- 上水道
- 公共
- 下水道
- 公共
- ガス
- 都市ガス
- 都市計画
- 市街化区域
- 用途地域
- 近隣商業
- 設備・条件
- システムキッチン、シャンプードレッサー、トイレ2箇所
- 備考
- 取引態様
- 仲介

