中古一戸建て 呉市本通5丁目2-
所在地
呉市本通5丁目2-
3,600万円
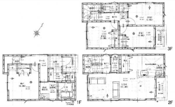
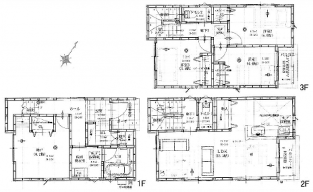
30.18坪
1F 6.2納戸 洗面 浴室 SIC 2F 15.5LDK トイレ 3F 5洋 4.5洋 4.4洋 トイレ
システムキッチン モニター付インターホン
24時間換気システム 浴室換気暖房乾燥機
月々の
支払例
支払例
万円
年
%
円
※呉信用金庫/借入金3,600万円、返済期間40年、金利0.925%変動金利)の場合
※審査により金利は変わる可能性があります。
物件概要
- 交通
-
バス停本通5丁目 まで 徒歩2分
- 接道状況
- 北東側 公道14.7m
- 土地面積
- 78.83㎡ (23.84坪)
- 建物面積
- 99.79㎡ (30.18坪)
- 築年数
-
2024年
(令和6)
8月
築1年 - 建ぺい率
- 80%
- 容積率
- 400%
- 土地権利
- 構造および階数
- 地上3階建
- 小学校区
- 本通
- 中学校区
- 和庄
- 私道負担
- 地目
- 現況
- 引渡時期
- 駐車場
- 上水道
- 公共
- 下水道
- 公共
- ガス
- 都市ガス
- 都市計画
- 市街化区域
- 用途地域
- 近隣商業
- 建築確認番号
- 第R05確認建築呉市建指00105号
- 設備・条件
- システムキッチン、シャンプードレッサー、浴室乾燥機、モニタ付インターホン、床下収納、トイレ2箇所
- 備考
- 取引態様
- 仲介

