中古一戸建て 呉市広弁天橋町4-
所在地
呉市広弁天橋町4-
3,080万円
29.81坪
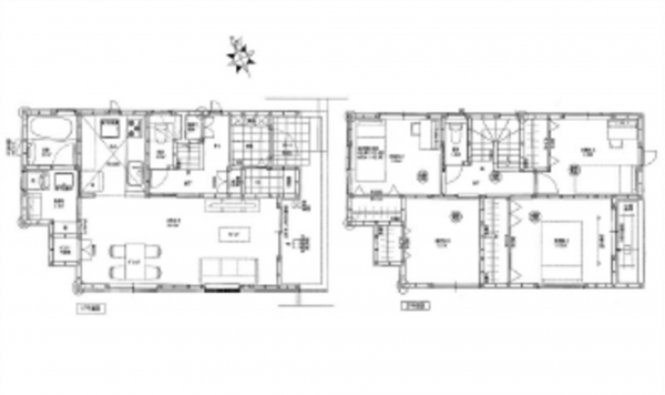
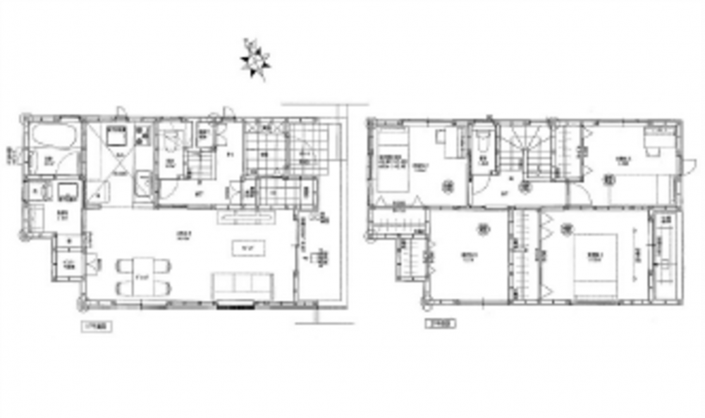
1F 15.9LDK SIC 2F 6.6洋 5.5洋 5.2洋 4.9納戸 トイレ
トータテハウジング施工 外構付 瑕疵担保保険付
フラット35S使用可能(但し、期限内に限ります)
カップボードあり
月々の
支払例
支払例
万円
年
%
円
※呉信用金庫/借入金3,080万円、返済期間40年、金利0.925%変動金利)の場合
※審査により金利は変わる可能性があります。
物件概要
- 交通
-
JR呉線 新広駅 まで 徒歩26分
バス停弁天橋 まで 徒歩3分
- 接道状況
- 南東側 公道4.63m
- 土地面積
- 100.69㎡ (30.45坪)
- 建物面積
- 98.57㎡ (29.81坪)
- 築年数
-
2024年
(令和6)
9月
築1年 - 建ぺい率
- 60%
- 容積率
- 185%
- 土地権利
- 構造および階数
- 地上2階建
- 小学校区
- 三坂地
- 中学校区
- 広中央
- 私道負担
- 地目
- 現況
- 引渡時期
- 駐車場
- 上水道
- 公共
- 下水道
- 公共
- ガス
- 都市ガス
- 都市計画
- 市街化区域
- 用途地域
- 1種中高
- 建築確認番号
- R06認広建セ00242
- 設備・条件
- システムキッチン、シャンプードレッサー、床下収納、トイレ2箇所
- 備考
- 既存建物基礎残置あり
- 取引態様
- 仲介

