中古一戸建て 呉市焼山東3丁目9-
所在地
呉市焼山東3丁目9-
2,850万円
32.80坪
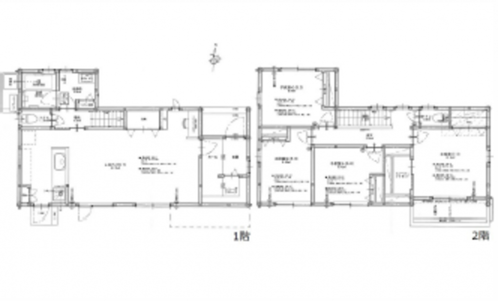
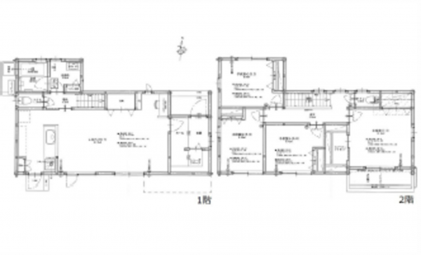
1F 19.7LDK SIC 2F 7.3洋 5.3洋 5洋 5洋 WIC トイレ
駐車場3台以上可能 陽当たり良好 オール電化住宅
広いシューズクローク
主寝室ウォークインクローゼット 2階4室
月々の
支払例
支払例
万円
年
%
円
※呉信用金庫/借入金2,850万円、返済期間40年、金利0.925%変動金利)の場合
※審査により金利は変わる可能性があります。
物件概要
- 交通
-
バス停第3団地入口 まで 徒歩5分
- 接道状況
- 北側 公道6m
- 土地面積
- 239.02㎡ (72.30坪)
- 建物面積
- 108.45㎡ (32.80坪)
- 築年数
-
2023年
(令和5)
10月
築2年 - 建ぺい率
- 50%
- 容積率
- 100%
- 土地権利
- 構造および階数
- 地上2階建
- 小学校区
- 昭和中央
- 中学校区
- 昭和
- 私道負担
- 地目
- 現況
- 引渡時期
- 駐車場
- 3台
- 上水道
- 公共
- 下水道
- 公共
- ガス
- 都市計画
- 市街化区域
- 用途地域
- 1種低層
- 設備・条件
- オール電化、システムキッチン、カウンターキッチン、IHクッキングヒーター、シャンプードレッサー、ウォークインクローゼット、駐車場3台分、トイレ2箇所
- 備考
-
水道分担金・瑕疵保険料:合計20万円必要
土地実測面積:239.47㎡ - 取引態様
- 仲介

