中古一戸建て 呉市焼山桜ヶ丘2丁目5-
所在地
呉市焼山桜ヶ丘2丁目5-
2,850万円
32.99坪
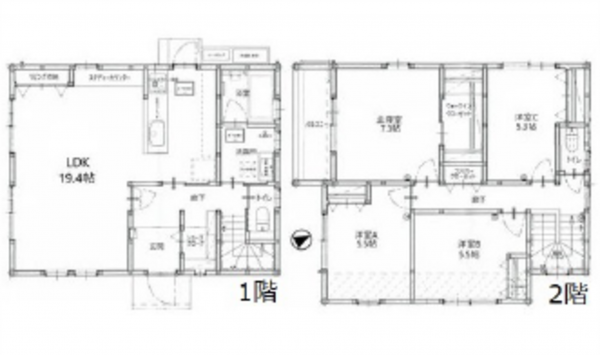
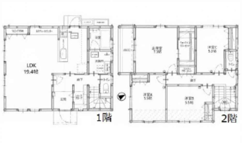
1F 19.4LDK SIC 2F 7.3洋 5.5洋 5.5洋 5.3洋 WIC トイレ
角地 オール電化 駐車スペース5台可(車種による) 省エネ給湯器
IHコンロ仕様の対面型システムキッチン 全居室収納 食器洗乾燥機
複層ガラス シャワー付洗面化粧台 浴室乾燥機 浴室1坪以上
オートバス 温水洗浄便座 床下収納 南面バルコニー
TVモニター付インターホン ウォークインクローゼット シューズインクローク
全居室フローリング 陽当り・通風・眺望良好 閑静な住宅地
月々の
支払例
支払例
万円
年
%
円
※呉信用金庫/借入金2,850万円、返済期間40年、金利0.925%変動金利)の場合
※審査により金利は変わる可能性があります。
物件概要
- 交通
-
バス停桜ヶ丘団地南 まで 徒歩2分
- 接道状況
-
北東側3.9m 間口約11.3m
南東側3.7m 間口約16.4m - 土地面積
- 243.58㎡ (73.68坪)
- 建物面積
- 109.08㎡ (32.99坪)
- 築年数
-
2023年
(令和5)
6月
築2年 - 建ぺい率
- 50%
- 容積率
- 100%
- 土地権利
- 構造および階数
- 地上2階建
- 小学校区
- 昭和南
- 中学校区
- 昭和
- 私道負担
- 地目
- 現況
- 引渡時期
- 駐車場
- 5台
- 上水道
- 公共
- 下水道
- 公共
- ガス
- 都市計画
- 市街化区域
- 用途地域
- 1種低層
- 設備・条件
- オール電化、システムキッチン、カウンターキッチン、IHクッキングヒーター、食器洗浄乾燥機、シャンプードレッサー、浴室乾燥機、モニタ付インターホン、洗浄便座、ウォークインクローゼット、複層ガラス、駐車場3台分、床下収納、トイレ2箇所
- 備考
-
景観法による規制有 宅地造成工事規制区域
都市再生特別地区 水道分担金・瑕疵保険料:20万円
私道負担:1.76㎡ セットバック済 間口:北東11.3m・南東16.4m - 取引態様
- 仲介

