中古一戸建て 呉市焼山桜ヶ丘2丁目5-
所在地
呉市焼山桜ヶ丘2丁目5-
390万円
30.57坪
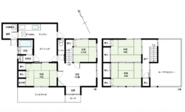
1F DK 7.5洋 6和 4.5和 倉庫 2F 6和 6和
角地
月々の
支払例
支払例
万円
年
%
円
※呉信用金庫/借入金390万円、返済期間40年、金利0.925%変動金利)の場合
※審査により金利は変わる可能性があります。
物件概要
- 交通
-
バス停桜ヶ丘団地南 まで 徒歩2分
- 接道状況
-
南側4m 間口約13.2m
東側3.8m 間口約12.3m - 土地面積
- 225.52㎡ (68.21坪)
- 建物面積
- 101.06㎡ (30.57坪)
- 築年数
-
1966年
(昭和41)
8月
築59年 - 建ぺい率
- 50%
- 容積率
- 100%
- 土地権利
- 構造および階数
- 木造 瓦葺 造 地上2階建
- 小学校区
- 昭和南
- 中学校区
- 昭和
- 私道負担
- 地目
- 現況
- 空
- 引渡時期
- 相談
- 駐車場
- 1台
- 上水道
- 公共
- 下水道
- 公共
- ガス
- プロパン個別
- 都市計画
- 市街化区域
- 用途地域
- 1種低層
- 設備・条件
- ルーフバルコニー、システムキッチン、シャンプードレッサー
- 備考
-
売主の契約不適合責任免責 現状有姿渡し
構造:木・コンクリートブロック造陸屋根瓦葺2階建
間口:南約13.2m 東約12.3m - 取引態様
- 仲介

