中古一戸建て 呉市伏原2丁目7-東
所在地
呉市伏原2丁目7-東
2,750万円
32.34坪
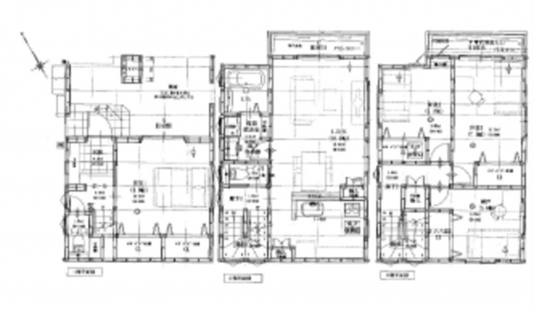
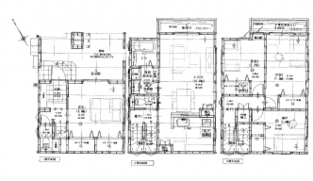
1F 車庫 8洋 2F 16.3LDK 浴室 洗面 トイレ 3F 7.1洋 5.2洋 5納戸
オール電化 太陽光発電システム有(3.75kwh)
トータテハウジング施工
月々の
支払例
支払例
万円
年
%
円
※呉信用金庫/借入金2,750万円、返済期間40年、金利0.925%変動金利)の場合
※審査により金利は変わる可能性があります。
物件概要
- 交通
-
バス停伏原2丁目 まで 徒歩2分
- 接道状況
- 北側 公道6m
- 土地面積
- 68.86㎡ (20.83坪)
- 建物面積
- 106.92㎡ (32.34坪)
- 築年数
-
2021年
(令和3)
12月
築4年 - 建ぺい率
- 60%
- 容積率
- 200%
- 土地権利
- 所有権
- 構造および階数
- 地上2階建
- 小学校区
- 明立
- 中学校区
- 東畑
- 私道負担
- 地目
- 現況
- 引渡時期
- 駐車場
- 1台
- 上水道
- 公共
- 下水道
- 公共
- ガス
- 都市計画
- 市街化区域
- 用途地域
- 1種住居
- 建築確認番号
- 第R03確認建築呉市建指00018号
- 設備・条件
- オール電化、システムキッチン、カウンターキッチン、IHクッキングヒーター、シャンプードレッサー、床下収納、トイレ2箇所
- 備考
-
水道分担金・瑕疵保険料別途20万円要
建築確認番号:第R03確認建築呉市建指00018号 - 取引態様
- 仲介

